Nájem bytů 1+kk (byty č. 1-11) – sociální bydlení, Ke Kostelu 6, městský obvod Plzeň 9 – Malesice
Popis:
Nájem bytu s dispozicí 1+kk, který se nachází ve zcela nově vystavěném domě v lokalitě městského obvodu Plzeň 9 – Malesice, ulice Ke Kostelu 6.
Byty se nachází v přízemí, 1. a 2. poschodí domu s výtahem. Topení i ohřev vody je zajištěno společnou plynovou kotelnou, umístěnou v přízemí domu. V bytě jsou nainstalována vlastní měřidla pro výpočet spotřeby v daném bytě. Byt je zařízen kuchyňskou linkou s varnou deskou a elektrickou troubou.
V domě je k dispozici společná kolárna v přízemí domu. Úklid společných prostor bude prováděn externí úklidovou firmou a rozpočítán do nájmu ke všem bytům.
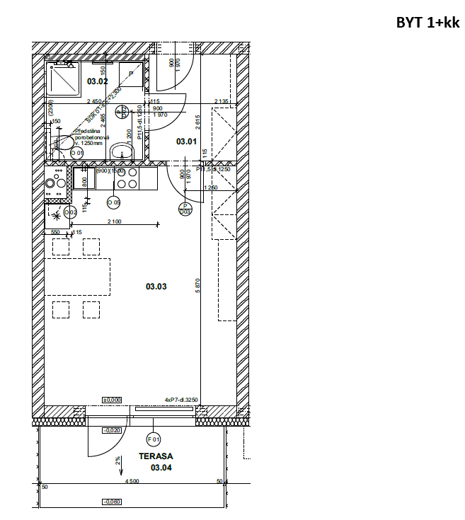
Přesné plochy místností bytu budou uvedené v evidenčním listě, který bude nedílnou součástí nájemní smlouvy k bytu.
V místě je celodenně dobře dostupná městská hromadná doprava. Trolejbusová zastávka je ve vzdálenosti přibližně 380 m od domu.
Výběr nájemce bytu bude probíhat v souladu . instrukcí QI 63-05-09 „Podmínky pro výběr nájemce do uvolněných bytů v domech ve vlastnictví města Plzně“ a podmínkami dotačního programu 38. výzvy IROP – Sociální bydlení. Při výběru nájemce může být zohledněn vztah k městskému obvodu Plzeň 9 – Malesice. Vztahem k obvodu se rozumí trvalé bydliště či sociální (rodinné) vazby.
Ke zjištění situace zájemce může provést vyhlašovatel sociální šetření.
Jakákoliv jiná přihláška, kde zájemci nebudou splňovat uvedené podmínky, bude vyřazena.
Platby:
Výše základního nájemného:
3 485 Kč/měsíc Základní nájemné je stanovené v souladu s dotačními podmínkami MMR ČR ve výši 74,30 Kč/m2 podlahové plochy bytu/měsíc (včetně nájemného za vybavení bytu a energie). Nájemné se může v budoucnu zvyšovat podle limitu dotačního programu.Poznámka k ceně: Zájemce by měl v rámci přihlášky po výpočtu celkového nájemného uvažovat i s tím, že k platbě nájemného bude měsíčně hradit ještě zálohu na služby spojené s užíváním bytu, která bude stanovena podle počtu osob užívajících byt a taktéž zálohy na energie.
+ Další platby (zálohy):zálohy na služby jsou orientační, přesná výše záloh bude určena při uzavírání NS
Studená voda: 300 Kč/měsíc/osoba Teplá voda: 400 Kč/měsíc/osoba Vytápění: 1 200 Kč/měsíc/byt Svoz odpadu: 150 Kč/měsíc/osoba Výtah: 150 Kč/měsíc/osoba Elektřina společných prostor: 100 Kč/měsíc/osoba Úklid: 200 Kč/měsíc/osoba Elektřinu si nájemce hradí sám (přepis smlouvy u dodavatele).Parametry:
Nabídka na: Adresa: Ke Kostelu 6 Lokalita: Plzeň - Malesice Započitatelná plocha bytu: 46.91 m² Rozloha: 46.91 m² Typ využití objektu: Bydlení Cena za m²: 74.3 Kč/m² (do 90 m²) Typ objektu: Byt Stav objektu: Novostavba Typ vlastnictví: Ve vlastnictví města Plzně Energetická náročnost budovy: Velmi úspornáPřílohy:
Priloha_c._1_Prijmovy_limit.docxPriloha_c._2_Cilove_skupiny_dle_typologie_ETHOS.docx
Zamer_socialni_byty_Malesice_1kk.docx
Tisk:
Vytisknout nabídkuKontakty:
Organizace:
Obytná zóna Sylván a.s.
Palackého náměstí 6
301 00 Plzeň
Realizuje makléř:
Jana Nejdlová
Telefon: 725 848 211
nejdlova@ozsylvan.cz
Prohlídka referenčního bytu umístěného v přízemí se koná dne 19. března 2026 ve 14,00 hodin.
Uzávěrka pro podání přihlášek je dne 24. března 2026 včetně.
Mám zájem o tento byt (Elektronická přihláška)
Novinky
Kontaktní místo pro bydlení (KMB)
30.09.2025 - 10:33
Pracovníci kontaktního místa pro bydlení týdně odbaví přibližně 60 osob. Na KMB získají informace související s bydlením nejen občané města Plzně, ale i lidé, kteří na území města Plzně žijí. Pracovníci informují o nabízených bytech, pomáhají s registracemi na dostupné bydlení i s přihlá&scaron…
Prevence ztráty bydlení jako záchranný kruh pro nájemce v městských bytech
30.09.2025 - 10:31
Hlavním cílem prevence ztráty bydlení je minimalizovat riziko, že lidí přijdou o svůj domov – zejména u těch osob a domácností, které mají potíže s plněním podmínek nájemního vztahu. Tímto způsobem se pracovníci prevence ztráty bydlení snaží předcházet nárůstu počtu lidí v bytové nouzi nebo bezdomovectví…
