Nájem bytu 3+kk pro vybrané profese (byt č. 5, ul. Kreuzmannova, objekt B), Plzeň - Zátiší
Popis:
Jedná se o byt určený pro fyzické osoby, které jsou zaměstnancem nebo vykonávají činnost v oborech zdravotnictví, školství, zajišťování veřejné bezpečnosti, integrovaného záchranného systému, poskytování sociálních služeb nebo výkonu veřejné správy. Do kategorie veřejná správa jsou zahrnuty ministerstva a jiné ústřední orgány státní správy, další správní úřady s celostátní působností, bezpečnostní sbory, správní úřady, nezávislé správní úřady, Armáda ČR, územní samosprávné celky a jejich příspěvkové organizace.
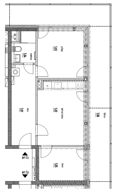
Byt je situován ve 2. NP ve zcela nově vybudovaném polyfunkčním domě bez výtahu v lokalitě Zátiší. Byt se nachází v budově, která je v dokumentaci pro schválení stavebního záměru na stavbu „BYTOVÝ DŮM PLZEŇ – ZÁTIŠÍ, ul. Kreuzmannova“ označena jako „objekt A“ a „objekt B“, jež byla povolena v souladu s Rozhodnutím o stavebním záměru č. j. UMO3/53469/24 ze dne 8. 11. 2024 spolu s nově vzniklým pozemkem parc. č. 1024/2, k.ú. Skvrňany, jehož součástí je novostavba.
Byt bude vybaven kuchyňskou linkou s vestavěnou elektrickou troubou a elektrickou varnou deskou. Topení i teplá voda jsou zajištěny dálkově. Součástí bytu je sklep a terasa.
Zájemci z vybraných profesí se mohou hlásit i na ostatní zveřejněné byty.
Jakákoliv jiná přihláška, kde zájemci nebudou splňovat uvedené podmínky, bude vyřazena.
Platby:
Výše základního nájemného:
14 161 Kč/měsíc Poznámka k ceně: Základní nájemné stanovené dle usnesení RMP č. 281 ze dne 9. 4. 2026 bude vždy k 1. březnu každého kalendářního roku pronajímatelem jednostranně navýšeno o roční míru inflace vyjádřenou přírůstkem průměrného indexu spotřebitelských cen za předchozí kalendářní rok vykázaným Českým statistickým úřadem, zvýšenou o tři procentní body s tím, že navýšení bude činit maximálně 6 %.Zájemce by měl v rámci přihlášky po výpočtu celkového nájemného uvažovat i s tím, že k platbě nájemného bude měsíčně hradit ještě zálohu na služby spojené s užíváním bytu, která bude stanovena podle počtu osob užívajících byt a taktéž zálohy na energie.
+ Další platby (zálohy):zálohy na služby jsou orientační, přesná výše záloh bude určena při uzavírání NS
Studená voda: 300 Kč/měsíc/osoba Teplá voda: 400 Kč/měsíc/osoba Zařizovací předměty: 600 Kč/měsíc/byt Vytápění: 1 200 Kč/měsíc/byt Svoz odpadu: 150 Kč/měsíc/osoba Elektřina společných prostor: 100 Kč/měsíc/osoba Úklid: 200 Kč/měsíc/osoba Elektřinu si nájemce hradí sám (přepis smlouvy u dodavatele).Parametry:
Nabídka na: Pronájem Adresa: Kreuzmannova 5 Lokalita: Plzeň - Zátiší Započitatelná plocha bytu: 76.55 m² Rozloha: 97.7 m² Typ využití objektu: Bydlení Cena za m²: 185 Kč/m² (do 90 m²) Typ objektu: Byt Stav objektu: Novostavba Typ vlastnictví: Ve vlastnictví města Plzně Dispozice: 3+kk Energetická náročnost budovy: Velmi úspornáMístnosti:
| pokoj + kk: | 17.6 m² |
|---|---|
| pokoj č.2: | 14.1 m² |
| pokoj č.3: | 9 m² |
| předsíň: | 11 m² |
| koupelna s wc: | 3.7 m² |
| sklep: | 11.4 m² |
| balkon: | 30.9 m² |
Tisk:
Vytisknout nabídkuKontakty:
Organizace:
Obytná zóna Sylván a.s.
Palackého náměstí 6
301 00 Plzeň
Realizuje makléř:
Jana Nejdlová
Telefon: 725 848 211
nejdlova@ozsylvan.cz
1. prohlídka vzorového bytu se koná dne 15. dubna 2026 ve 14,00 hodin.
2. prohlídka vzorového bytu se koná dne 22. dubna 2026 ve 14,00 hodin.
Účast na prohlídce není nutné hlásit předem. Individuální termíny prohlídek se nesjednávají.
Uzávěrka pro podání přihlášek je dne 26. dubna 2026 včetně.
Mám zájem o tento byt (Elektronická přihláška)
Novinky
Městská soutěž na prodej volné nebytové jednotky č. 1875/101, Francouzská tř. 36, Plzeň
10.04.2026 - 12:56Statutární město Plzeň vyhlašuje městskou soutěž na prodej volné nebytové jednotky č. 1875/101, Francouzská tř. 36, Plzeň. Městská soutěž se koná dne 13. 5. 2026.
Městská soutěž na prodej volné nebytové jednotky č. 1872/101, Francouzská tř. 30, Plzeň
10.04.2026 - 12:55Statutární město Plzeň vyhlašuje městskou soutěž na prodej volné nebytové jednotky č. 1872/101, Francouzská tř. 30, Plzeň. Městská soutěž se koná dne 13. 5. 2026.
