Nájem bytu 2+kk (byt č. 2, ul. Kreuzmannova, objekt A) pro seniory a osoby se zdravotním postižením, Plzeň - Zátiší
Popis:
Byt je situován v 1. NP (přízemí domu) ve zcela nově vybudovaném polyfunkčním domě bez výtahu v lokalitě Zátiší. Byt se nachází v budově, která je v dokumentaci pro schválení stavebního záměru na stavbu „BYTOVÝ DŮM PLZEŇ – ZÁTIŠÍ, ul. Kreuzmannova“ označena jako „objekt A“, jež byla povolena v souladu s Rozhodnutím o stavebním záměru č. j. UMO3/53469/24 ze dne 8. 11. 2024 spolu s nově vzniklým pozemkem parc. č. 1024/2, k.ú. Skvrňany, jehož součástí je novostavba.
Byt bude vybaven kuchyňskou linkou s vestavěnou elektrickou troubou a elektrickou varnou deskou. V koupelně se nachází sprchový kout. Topení i teplá voda jsou zajištěny dálkově. Součástí bytu je terasa a sklep, který se nachází v suterénu domu a je přístupný pouze po schodišti.
Bydlení je vhodné pro 1-2 osoby.
V případě shody bodového hodnocení u více přihlášených může být zohledněna aktuální sociální či zdravotní situace žadatele. Ke zjištění situace zájemce může provést vyhlašovatel sociální šetření. Vyhlašovatel si může vyžádat doklady (např. lékařskou zprávu), prokazující rozsah pohybového omezení.
Výběr nájemce bytu bude probíhat v souladu s bodem 5.4.2.2. instrukce QI 63-05-09 Podmínky pro výběr nájemce do uvolněných bytů v domech ve vlastnictví města Plzně.
Byt je vyčleněný pro osoby, jejichž schopnost získání vlastního bydlení je omezena věkem nebo zdravotním stavem, avšak osoby zcela soběstačné, bez potřeby komplexní sociální nebo zdravotní péče. Jakákoliv jiná přihláška, kde zájemci nebudou splňovat uvedené podmínky, bude vyřazena.
Fotografie nepatří přímo k danému bytu, jsou z různých bytů v domě v době před dokončením stavby a slouží pouze pro představu o zařízení bytů.
Jakákoliv jiná přihláška, kde zájemci nebudou splňovat uvedené podmínky, bude vyřazena.
Platby:
Výše základního nájemného:
4 576 Kč/měsíc Základní nájemné je stanovené, ve smyslu usnesení Rady města Plzně č. 124/2025, ve výši 65,00 Kč/m2 podlahové plochy bytu/měsíc (bez nájemného za vybavení bytu a energie). Nájemné se nezvyšuje o inflaci.+ Další platby (zálohy):zálohy na služby jsou orientační, přesná výše záloh bude určena při uzavírání NS
Studená voda: 300 Kč/měsíc/osoba Teplá voda: 400 Kč/měsíc/osoba Zařizovací předměty: 750 Kč/měsíc/byt Vytápění: 1 375 Kč/měsíc/byt Svoz odpadu: 150 Kč/měsíc/osoba Elektřina společných prostor: 100 Kč/měsíc/osoba Úklid: 200 Kč/měsíc/osoba Elektřinu si nájemce hradí sám (přepis smlouvy u dodavatele).Parametry:
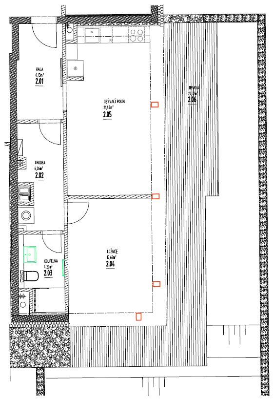
Nabídka na: Pronájem Adresa: Kreuzmannova 5 Lokalita: Plzeň - Zátiší Započitatelná plocha bytu: 70.4 m² Rozloha: 88 m² Typ využití objektu: Bydlení Cena za m²: 65 Kč/m² (do 90 m²) Typ objektu: Byt Stav objektu: Novostavba Typ vlastnictví: Ve vlastnictví města Plzně Dispozice: 2+kkMístnosti:
| pokoj + kk: | 21 m² |
|---|---|
| pokoj č.2: | 15.3 m² |
| předsíň: | 12.1 m² |
| koupelna s wc: | 4.4 m² |
| sklep: | 5.4 m² |
| terasa: | 29.8 m² |
Tisk:
Vytisknout nabídkuKontakty:
Organizace:
Obytná zóna Sylván a.s.
Palackého náměstí 6
301 00 Plzeň
Realizuje makléř:
Jana Nejdlová
Telefon: 725 848 211
nejdlova@ozsylvan.cz
1. prohlídka bytu se koná dne 4. května 2026 ve 13,00 hodin.
2. prohlídka bytu se koná dne 11. května 2026 ve 12,30 hodin.
Účast na prohlídce není nutné hlásit předem. Individuální termíny prohlídek se nesjednávají.
Uzávěrka pro podání přihlášek je dne 18. května 2026 včetně.
Mám zájem o tento byt (mám dokončenou registraci)
Novinky
Městská soutěž na prodej volné nebytové jednotky č. 1875/101, Francouzská tř. 36, Plzeň
10.04.2026 - 12:56Statutární město Plzeň vyhlašuje městskou soutěž na prodej volné nebytové jednotky č. 1875/101, Francouzská tř. 36, Plzeň. Městská soutěž se koná dne 13. 5. 2026.
Městská soutěž na prodej volné nebytové jednotky č. 1872/101, Francouzská tř. 30, Plzeň
10.04.2026 - 12:55Statutární město Plzeň vyhlašuje městskou soutěž na prodej volné nebytové jednotky č. 1872/101, Francouzská tř. 30, Plzeň. Městská soutěž se koná dne 13. 5. 2026.
