Nájem bytu 2+kk (byt č. 5) pro osoby mladší 36 let, Na Jíkalce 2, Plzeň - Jižní Předměstí
Popis:
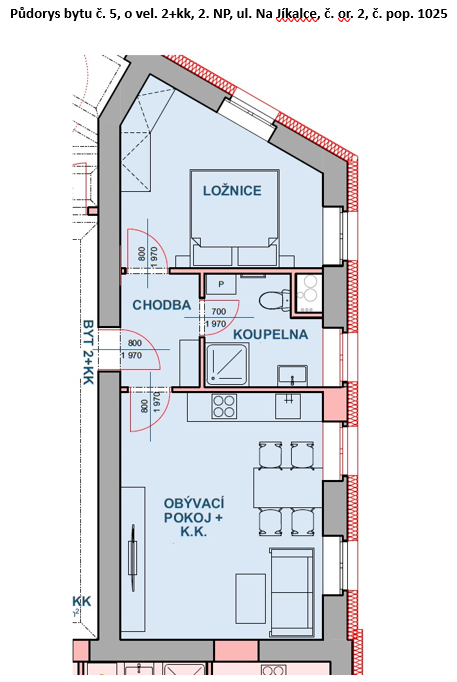
Nájem bytu, který se nachází ve 2. NP (1. poschodí) v kompletně zrekonstruovaném domě bez výtahu. Byt je zařízen kuchyňskou linkou s varnou deskou a troubou. Topení i ohřev vody jsou dálkové. Součástí bytu je sklepní kóje.
Jedná se o byt určený pro osoby mladší 36 let, v případě společných nájemců musí být oba mladší 36 let.
Informace k pronájmům bytů bez registrace, případně podmínky uvedené na této stránce.
Jakákoliv jiná přihláška, kde zájemci nebudou splňovat uvedené podmínky, bude vyřazena.
Pokud máte podanou žádost o regis-
traci a v ní uvádíte rozdílné údaje, bude Vaše přihláška vyřazena.
Platby:
Výše základního nájemného:
6 798 Kč/měsíc Poznámka k ceně: Základní nájemné výše uvedených bytů stanovené dle usnesení RMP č. 1067 ze dne 8. listopadu 2023 revokovaného usnesením RMP č. 888 ze dne 21. října 2025 bude v souladu s usnesením RMP č. 1343 ze dne 17. prosince 2019 revokovaného usnesením RMP č. 744 ze dne 28. června 2021 vždy k 1. březnu každého kalendářního roku pronajímatelem jednostranně navýšeno o roční míru inflace vyjádřenou přírůstkem průměrného indexu spotřebitelských cen za předchozí kalendářní rok vykázaným Českým statistickým úřadem, zvýšenou o tři procentní body s tím, že navýšení bude činit maximálně 6 %.+ Další platby (zálohy):zálohy na služby jsou orientační, přesná výše záloh bude určena při uzavírání NS
Studená voda: 300 Kč/měsíc/osoba Teplá voda: 400 Kč/měsíc/osoba Zařizovací předměty: 750 Kč/měsíc/byt Vytápění: 980 Kč/měsíc/byt Svoz odpadu: 150 Kč/měsíc/osoba Elektřina společných prostor: 100 Kč/měsíc/osoba Elektřinu a plyn si nájemce hradí sám (přepis smlouvy u dodavatele).Parametry:
Nabídka na: Pronájem Adresa: Na Jíkalce 2 Lokalita: Plzeň - Jižní Předměstí Započitatelná plocha bytu: 42.86 m² Rozloha: 44.61 m² Typ využití objektu: Bydlení Cena za m²: 158.62 Kč/m² (do 90 m²) Typ objektu: Byt Stav objektu: Po celkové rekonstrukci Typ vlastnictví: Ve vlastnictví města Plzně Dispozice: 2+kkMístnosti:
| pokoj + kk: | 18.92 m² |
|---|---|
| pokoj č.2: | 12.31 m² |
| předsíň: | 4.19 m² |
| wc: | 1.68 m² |
| koupelna: | 4 m² |
| sklep: | 3.51 m² |
Tisk:
Vytisknout nabídkuKontakty:
Organizace:
Obytná zóna Sylván a.s.
Palackého náměstí 6
301 00 Plzeň
Realizuje makléř:
Jana Nejdlová
Telefon: 725 848 211
nejdlova@ozsylvan.cz
1. prohlídka vzorového bytu se koná dne 13. května 2026 ve 13,00 hodin.
2. prohlídka vzorového bytu se koná dne 27. května 2026 ve 13,00 hodin.
Účast na prohlídce není nutné hlásit předem. Individuální termíny prohlídek se nesjednávají.
Uzávěrka pro podání přihlášek je dne 31. května 2026 včetně.
Mám zájem o tento byt (Elektronická přihláška)
Novinky
Kontaktní místo pro bydlení (KMB)
30.09.2025 - 10:33
Pracovníci kontaktního místa pro bydlení týdně odbaví přibližně 60 osob. Na KMB získají informace související s bydlením nejen občané města Plzně, ale i lidé, kteří na území města Plzně žijí. Pracovníci informují o nabízených bytech, pomáhají s registracemi na dostupné bydlení i s přihlá&scaron…
Prevence ztráty bydlení jako záchranný kruh pro nájemce v městských bytech
30.09.2025 - 10:31
Hlavním cílem prevence ztráty bydlení je minimalizovat riziko, že lidí přijdou o svůj domov – zejména u těch osob a domácností, které mají potíže s plněním podmínek nájemního vztahu. Tímto způsobem se pracovníci prevence ztráty bydlení snaží předcházet nárůstu počtu lidí v bytové nouzi nebo bezdomovectví…
